Machetă arhitecturală locuință de vacanță cu volum simplu și acoperiș în două ape

locuință de vacanță

CASĂ PE STRUCTURĂ DIN LEMN

VOLUM, LUMINĂ ȘI PROPORȚIE

Proiect: Locuință de vacanță
Tipologie: Rezidențial
Locație: Ciolpani
Rol: concept, proiectare integrată arhitectură+structură+design interior

CONCEPT

Casa este gândită ca un volum simplu, așezat discret în peisaj.
Proporțiile, deschiderile și panta acoperișului reinterpretază tipologia familiară a casei rurale, într-o formă contemporană.

Arhitectura nu caută gesturi spectaculoase.
Prin volum, lumină și ritm, proiectul urmărește să creeze o prezență calmă în peisajul natural.

Plan de încadrare

Plan de situație


ORGANIZARE

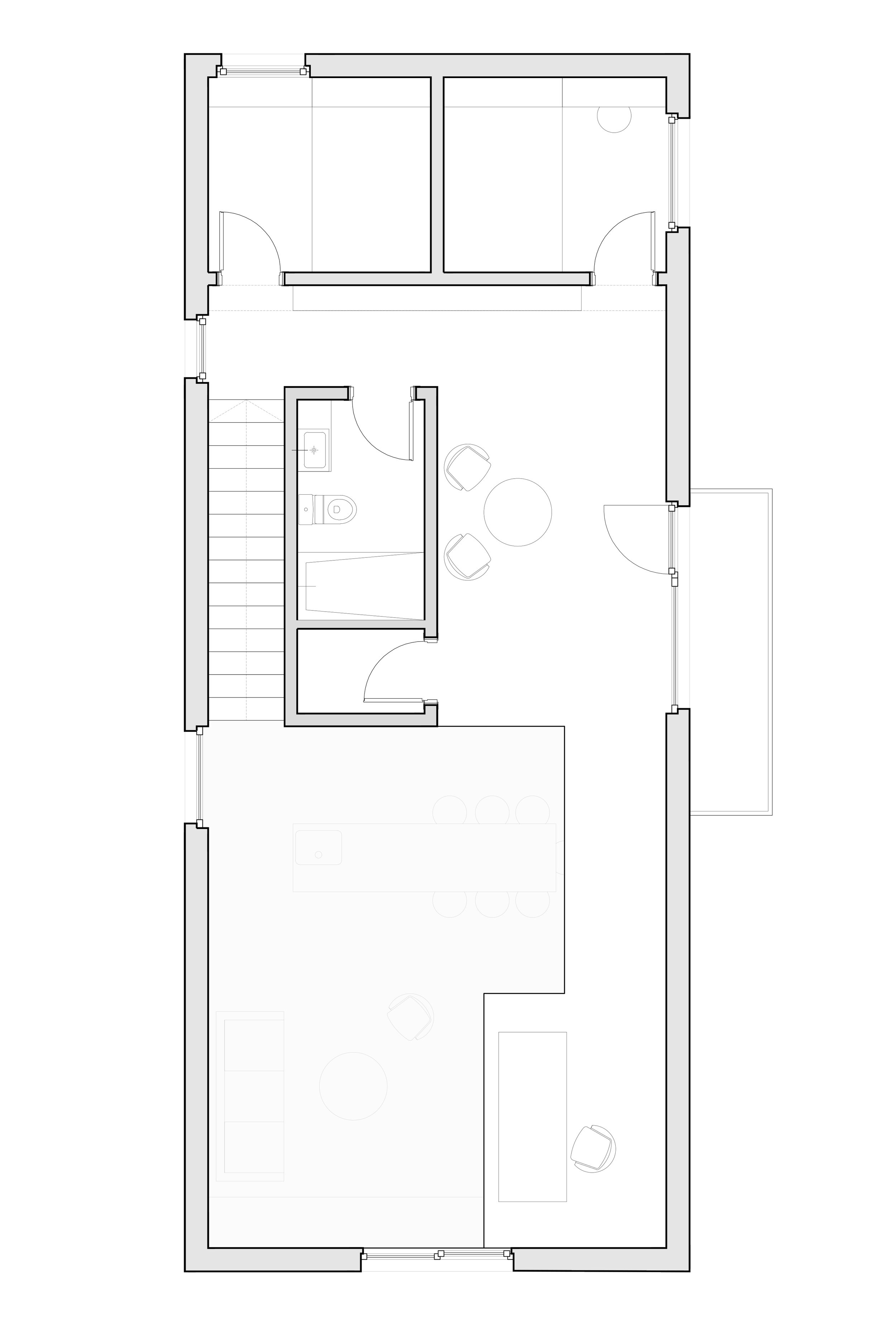
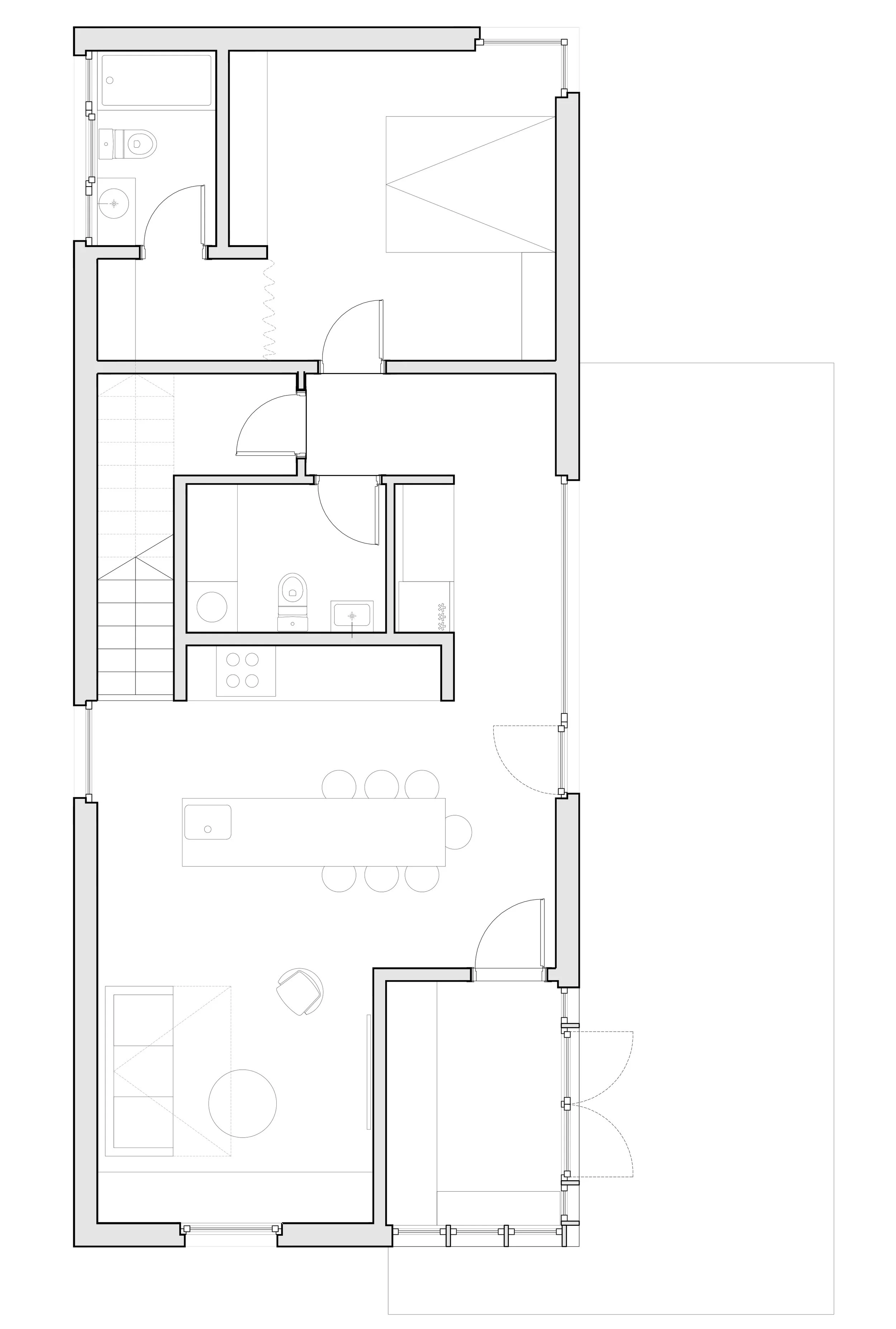
Planul este organizat clar, în jurul unei zone de zi deschise către grădină.
Spațiile comune ocupă parterul și se extind către exterior prin suprafețe vitrate generoase pe sud.

Etajul adăpostește zona de noapte, mai retrasă și mai intimă dar și spații de relaxare și lucru deschise către peisaj.

Zonele de noapte au vedere catre gradină și sunt dispuse pe vest.
Circulația este simplă și directă, iar fiecare spațiu susține o locuire relaxată, specifică unei case de vacanță.

Parter

Etaj

STRUCTURĂ

Casa este realizată pe structură din lemn, aleasă pentru eficiența constructivă și pentru relația naturală cu materialitatea proiectului.

Sistemul structural permite deschideri generoase și o execuție rapidă, menținând în același timp o amprentă constructivă redusă.

Structura devine astfel nu doar o soluție tehnică, ci parte integrată din logica proiectului.

Model 3D structură casă de vacanță din lemn cu acoperiș în două ape

Model structură

SECȚIUNE

Secțiunea casei este definită de panta acoperișului, care modelează spațiul interior și aduce lumină în zonele principale.

Înălțimea generoasă a livingului creează o relație directă cu volumul acoperișului, în timp ce zonele private rămân mai compacte și mai intime.

Prin această variație de înălțime, casa capătă ritm și profunzime spațială.

Secțiune arhitecturală locuință de vacanță cu spațiu dublă înălțime

Secțiune transversală


Spațiu de zi luminos cu lemn natural într-o locuință de vacanță

ATMOSFERĂ

Interiorul urmărește o atmosferă calmă și luminoasă, în concordanță cu emoția exterioară a locului.
Materialele naturale, lumina difuză și proporțiile echilibrate creează un spațiu simplu, dar cald.

Casa nu se impune prin decor, ci prin claritatea spațiului și prin relația directă cu exteriorul.

Interior casă din lemn cu volum înalt și deschidere către natură
Locuință de vacanță cu fațadă din lemn și volum simplu
Previous
Previous

SMASHKING

Next
Next

SKYTOWER GREENERY